Mieszkanie na sprzedaż Kraków, Dębniki

1 pokoj
31.74 m²
18 300,00 zł/m2
parter
FML-MS-18
Oblicz ratę kredytu

580 842 zł

Mieszkanie na sprzedaż
Nowa oferta

Szczegóły oferty

Inwestycja Bunscha Residence
Symbol oferty FML-MS-18
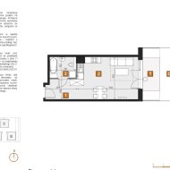
Powierzchnia 31,74 m²
Powierzchnia użytkowa [m2] 31,74 m²
Liczba pokoi 1
Rodzaj budynku apartamentowiec
Standard
Piętro parter
Stan lokalu deweloperski
Rok budowy 2026
Woda ciepła - miejska
Ogrzewanie centralne
Umeblowanie nieumeblowane
Winda tak
Usytuowanie jednostronne

Opis nieruchomości

Lokalizacja nieruchomości

Kalkulatory

Kalkulator kredytowy

Wysokość raty

PLN
%

Kalkulator kosztów

Taksa notarialna
(opłata notarialna)

Wniosek o wpis do KW

VAT od prowizji
agencji nieruchomości

VAT od taksy notarialnej
(opłaty notarialnej)

Prowizja agencji nieruchomości

Wypisy aktu notarialnego

Razem

Uwaga: mogą wystąpić dodatkowe opłaty za założenie księgi wieczystej oraz ustanowienie hipoteki.

PLN
PLN
PLN
PLN
PLN
%
PLN

Manager

Proszę wprowadzić poprawne imię i nazwisko
Proszę wprowadzić poprawny numer telefonu
Proszę wprowadzić poprawny adres e-mail
Proszę zaznaczyć wymagane zgody
Rozwiąż równanie:
18 2
Niepoprawny wynik