Mieszkanie na sprzedaż Kraków, Bunscha

1 pokoj
28.78 m²
18 900,00 zł/m2
1 piętro
FML-MS-17
Oblicz ratę kredytu

543 942 zł

Mieszkanie na sprzedaż
Bez prowizji

Szczegóły oferty

Inwestycja Bunscha Residence
Symbol oferty FML-MS-17
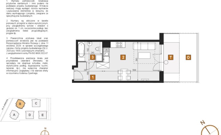
Powierzchnia 28,78 m²
Powierzchnia użytkowa [m2] 28,74 m²
Liczba pokoi 1
Rodzaj budynku budynek wielorodzinny
Technologia budowlana -
Standard
Piętro 1
Liczba pięter w budynku 5
Stan lokalu deweloperski
Instalacje nowe
Balkon jest
Rok budowy 2026
Gaz brak
Woda ciepła - miejska
Ogrzewanie centralne
Umeblowanie nieumeblowane
Winda tak
Usytuowanie jednostronne

Opis nieruchomości

Lokalizacja nieruchomości

Kalkulatory

Kalkulator kredytowy

Wysokość raty

PLN
%

Kalkulator kosztów

Taksa notarialna
(opłata notarialna)

Wniosek o wpis do KW

VAT od prowizji
agencji nieruchomości

VAT od taksy notarialnej
(opłaty notarialnej)

Prowizja agencji nieruchomości

Wypisy aktu notarialnego

Razem

Uwaga: mogą wystąpić dodatkowe opłaty za założenie księgi wieczystej oraz ustanowienie hipoteki.

PLN
PLN
PLN
PLN
PLN
%
PLN

Podobne oferty

Nowa oferta

Mieszkanie na sprzedaż

Kraków, Dębniki

1 pokoj 32 m2 18 300,00 zł/m2
Nowa oferta

Manager

Proszę wprowadzić poprawne imię i nazwisko
Proszę wprowadzić poprawny numer telefonu
Proszę wprowadzić poprawny adres e-mail
Proszę zaznaczyć wymagane zgody
Rozwiąż równanie:
22 6
Niepoprawny wynik